神戸市 Y様邸 フルリノベーション
親子の笑顔があふれ、光と風に包まれた空間づくりへ
施工事例データ
| 築年数 | 31年 |
|---|---|
| 建築種類 | マンション |
| 施工床面積 | 94.3㎡ |
| 工事日数 | 45日(キッチンを含む全体改装) |
| 家族構成 | 3人 |
| 施工箇所 | 全面改装 |
| 施工内容 | 仮設・解体 木工事 造作工事 住宅設備機器工事 内装工事 内窓・その他工事 |
| 工事金額 | 811万円 |
| 担当 | 田中・千賀 |
| お客様のご要望 | 『眺望に惹かれて購入した中古マンションを好み通りに一新し、開放感を味わいながらのびのび暮らしたい』 |
|---|
| プラン決定のポイント工夫 |
|
|---|
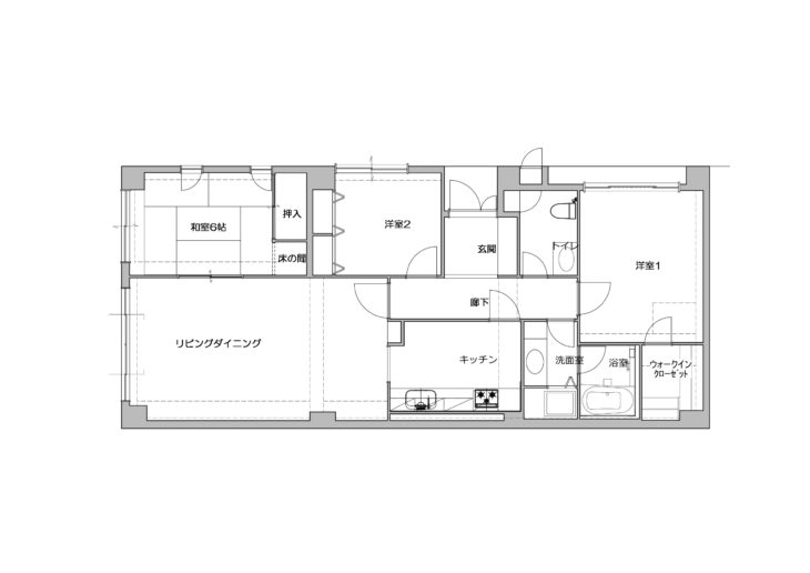
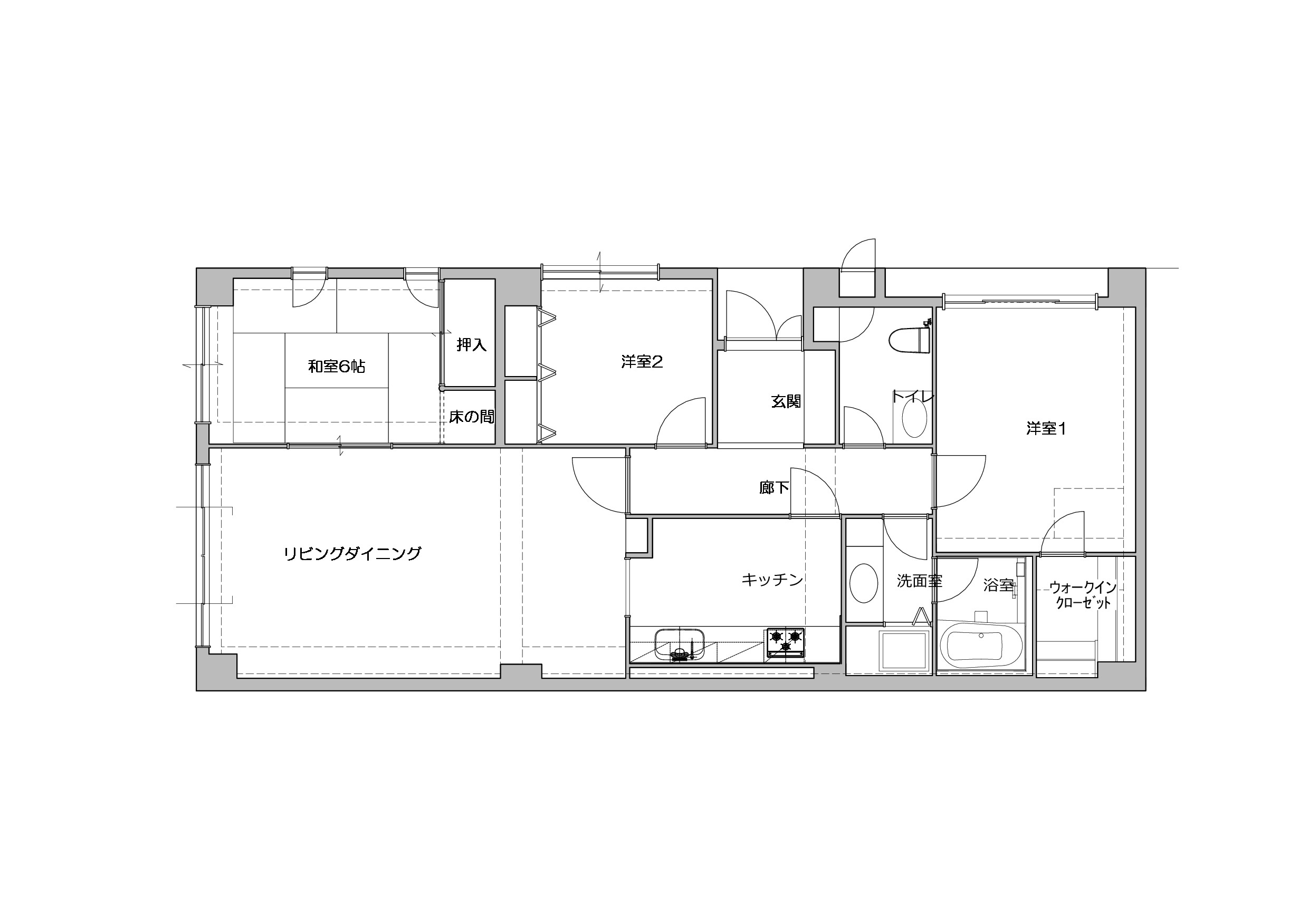
施工前
和室とリビングの間には間仕切りがあるので暗い印象
リビングのとなりにある和室
この押入れスペースがキッズスペースに可愛く生まれ変わります!
独立していた閉鎖的なキッチン
テラス方面からキッチンを見ると暗い印象
広すぎたトイレ空間
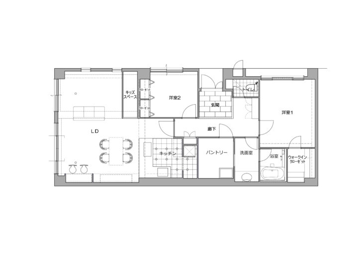
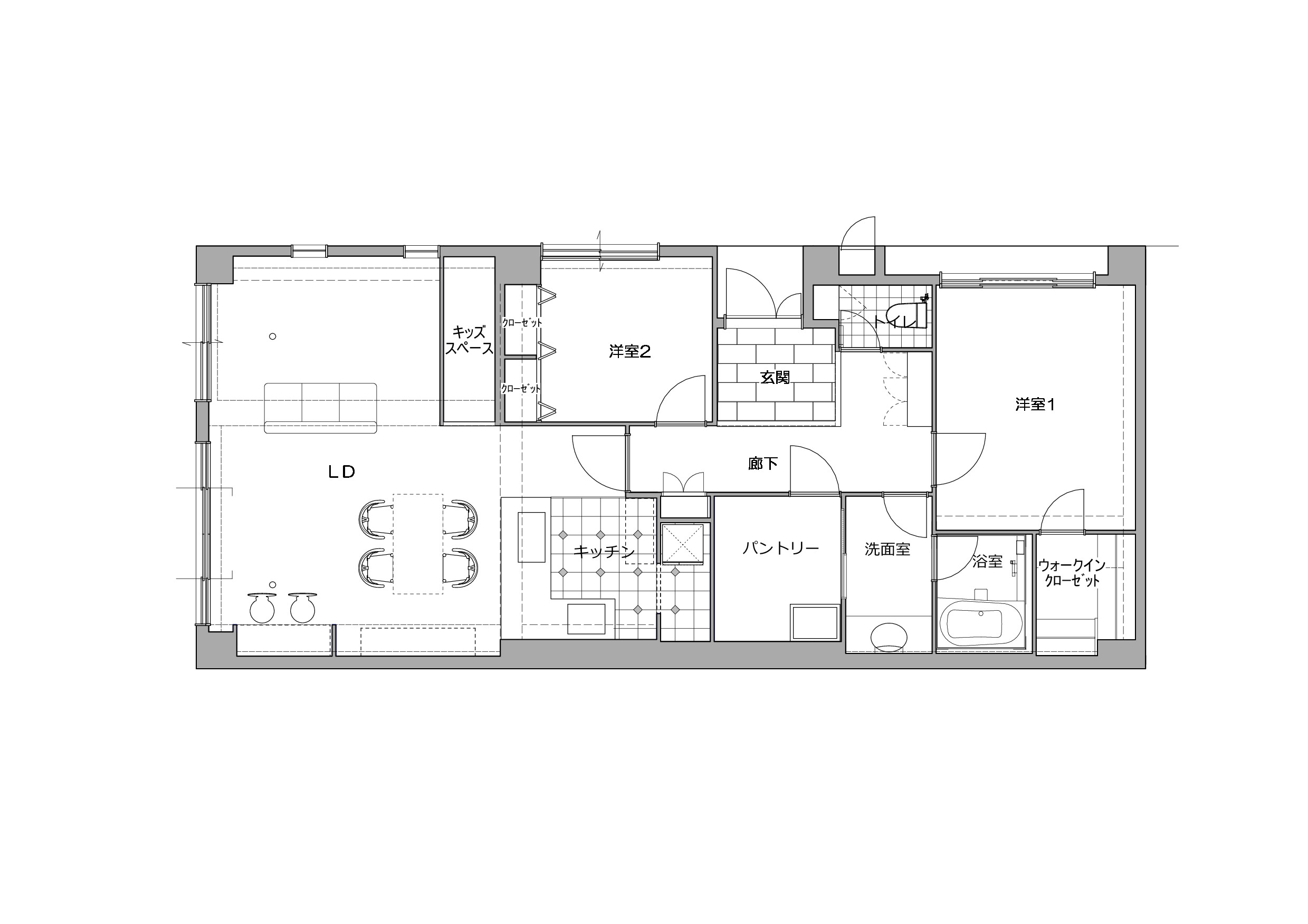
施工後
眺望の素晴らしさ、風と光を感じられる大空間が誕生。省エネ対策として内窓を設置。
元々は暗い和室があった場所も間仕切りを取り除きLDKの一部に。
ハンモックを吊り下げ、遊び心あふれるリビング!
貼り下部分の三角屋根コーナーは、将来的にお子様の勉強スペースとして活用される予定。
アーチ開口の先にはパントリーや収納スペースを設けて機能的に。キッチン:グラフテクト
大きなミラーやボウルにもこだわったオリジナルデザインに造作。
床はチーク無垢材をヘリンボーン貼りに!
こだわりのグラフテクト社のキッチン。キッチン壁タイル:名古屋モザイク シェヴロンウォール 床タイル:ニッタイ タスカニーⅡ
トイレを少し狭めたことによって隣接する玄関ホールをゆったりと!平田タイルQS-3060L×R
元和室の押し入れ、床の間→キッズスペースに生まれ変わりました!床はかわいらしい長尺シートを採用。
壁クロス:WALP 床:名古屋モザイク モデルニスモ
担当者より
| お客様ご自身で、色々と研究されており、明確な方向性もあったので、楽しくプランすることが出来ました。 また、勉強になることもたくさんありました。 |


















