神戸市 T様邸
空間を彩る、明るい開放的なリビング空間
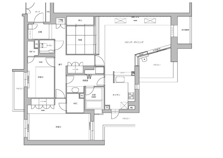
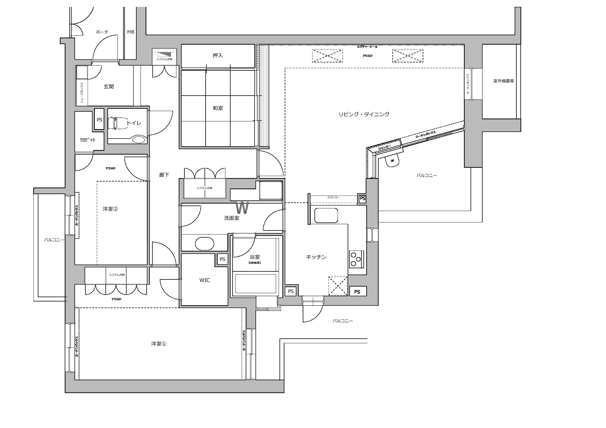
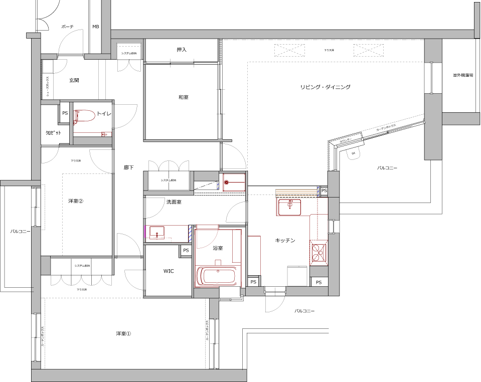
施工事例データ
| 築年数 | 23年 |
|---|---|
| 建築種類 | マンション |
| 施工床面積 | 124.63㎡ |
| 工事日数 | 1ヵ月 |
| 家族構成 | 3人 |
| 施工箇所 | リビング・ダイニング・キッチン、洗面、トイレ、和室、UB |
| 施工内容 | 全面リフォーム |
| 工事金額 | 910万円 |
| 担当 | 佐藤・檜尾 |
| お客様のご要望 | ・閉鎖的なキッチンを明るく、開放的な空間にしたい ・既存の物件を自分達好みに仕上げて欲しい。 ・内装と設備機器の刷新 |
|---|
| プラン決定のポイント工夫 | ・お子様がまだ小さく、様子を見ながら家事をしたいので閉鎖的なキッチンをオープンにしたいとの事。吊り壁を撤去して、LDと一体感のある明るいキッチンを提案しました。イメージを作成して、お子様の様子を常に見ながら家事が出来るように考案していき、施主様の想いと理想にピッタリと合うようにヒアリングを重ねていきました。 ・間取りに大きな変更はなく、内装と設備入替で雰囲気を変えていきたいご要望から、奥様が一目惚れされたトクラスのキッチン(コラージア)のカラーを中心に、リビングの和室にアクセントカラーを入れてモダンな和室へと変更。整理整頓されたスッキリとしたリビングの中にオリジナリティのある洗練された空間をデザインしました。 ・トクラスの洗面台は、キッチンと同じカラーを。スモーキーピンクなカラーは、シックな中に明るさもあり、清楚で落ち着いた雰囲気を出します。オープンキャビネットを選ぶことで椅子を収納して、優雅なスキンケアタイムを過ごすことが出来るようにしています。 |
|---|
施工前
施工後
担当者より
[担当者より]
トクラスのキッチンの扉のカラーはグレイッシュなくすみカラーのピンクに一目惚れされたほど、奥様のお気に入りに。その色をベースに施主様ご家族の雰囲気に合う壁紙を選んだり、アクセントカラーで遊び心を入れながら、オリジナルな空間づくりを心がけました。施工写真の撮影時にお伺いした時に、小さなお子様がいらっしゃる中、とても綺麗に整頓されていて、ご自宅での生活を楽しみながら大切に使われているのを感じることが出来、とても嬉しく思いました。
[お客様より]
母のお友達からの紹介で、とても高評価だったので即決。担当者の方も、コーディネーターの方もこちらの意見をしっかりと聞いて下さり、実際にどうなるのかがイメージしやすく、お任せして本当に良かったと思います。
子供がまだ小さい中、以前の小窓からしか様子が伺えないキッチンはお料理もゆっくり出来ませんでしたが、リフォーム後吊り壁がなくなって開放的になったキッチンからは、LDの様子が良く分かり、ゆっくりと家事が出来るようになりました。
今回は床までは変更しなかったのですが、壁紙や設備の入替のみでも、まるで新築のような雰囲気になり、とても幸せです!本当に有難うございました。





















