神戸市 Y 様邸
景色も味わう 私達にちょうどいいキッチン
施工事例データ
| 築年数 | 26年 |
|---|---|
| 建築種類 | マンション |
| 施工床面積 | 32㎡ |
| 工事日数 | 2ヵ月 |
| 家族構成 | 3人 |
| 施工箇所 | キッチン |
| 施工内容 | キッチンリフォーム |
| 工事金額 | 660万円 |
| 担当 | 小出・松長 |
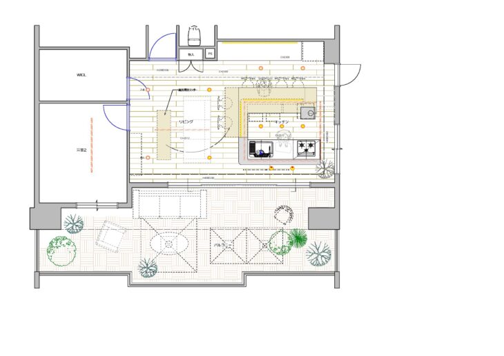
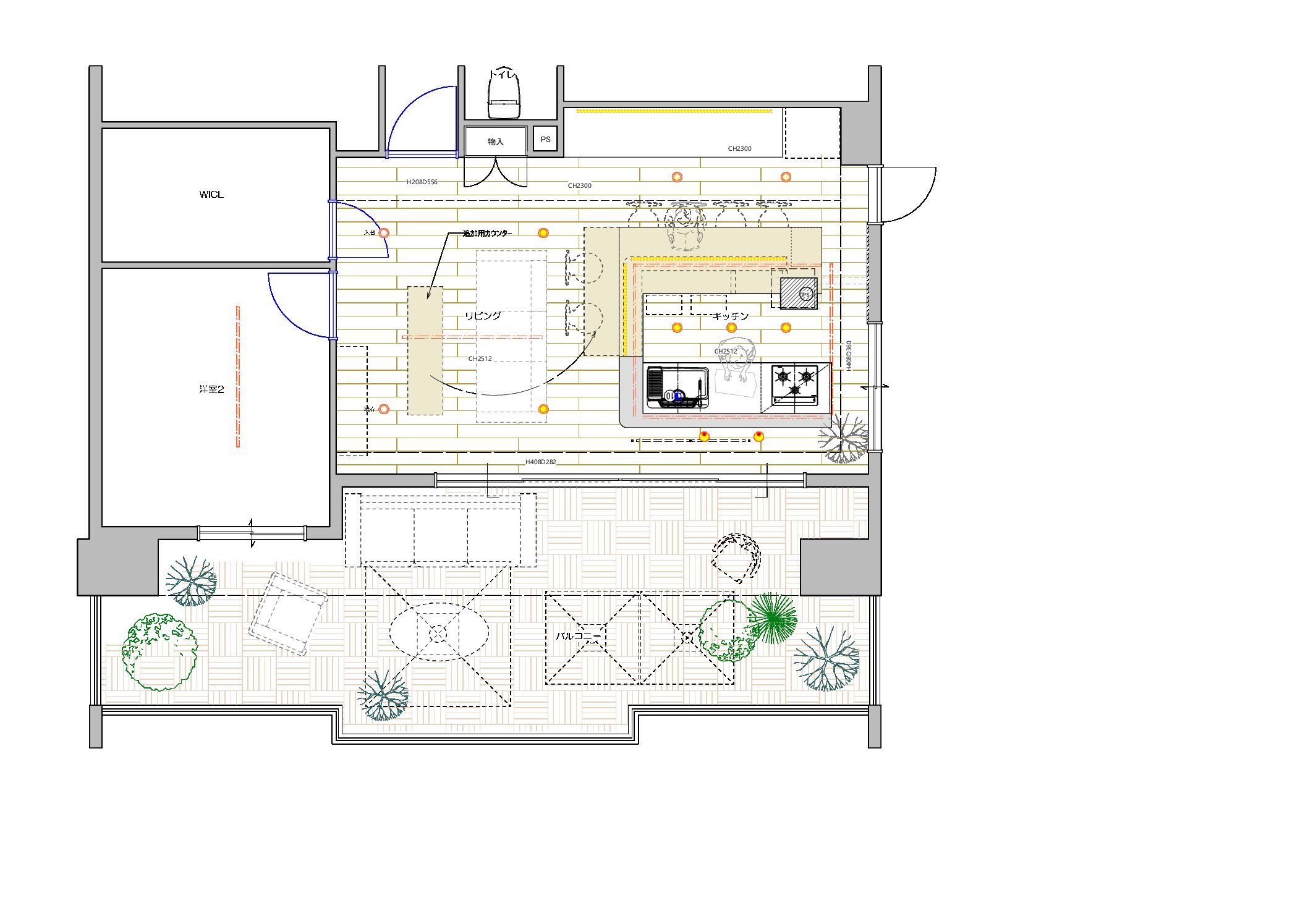
| お客様のご要望 | ・料理中も食事中も景色を眺めることが出来るキッチンにしたい ・友人を招いて食事会をよくするので、最大8人が座れるようにしたい ・モールテックスを使いたい ・コンロ前の壁を抜いて通り抜けれる様にして欲しい |
|---|
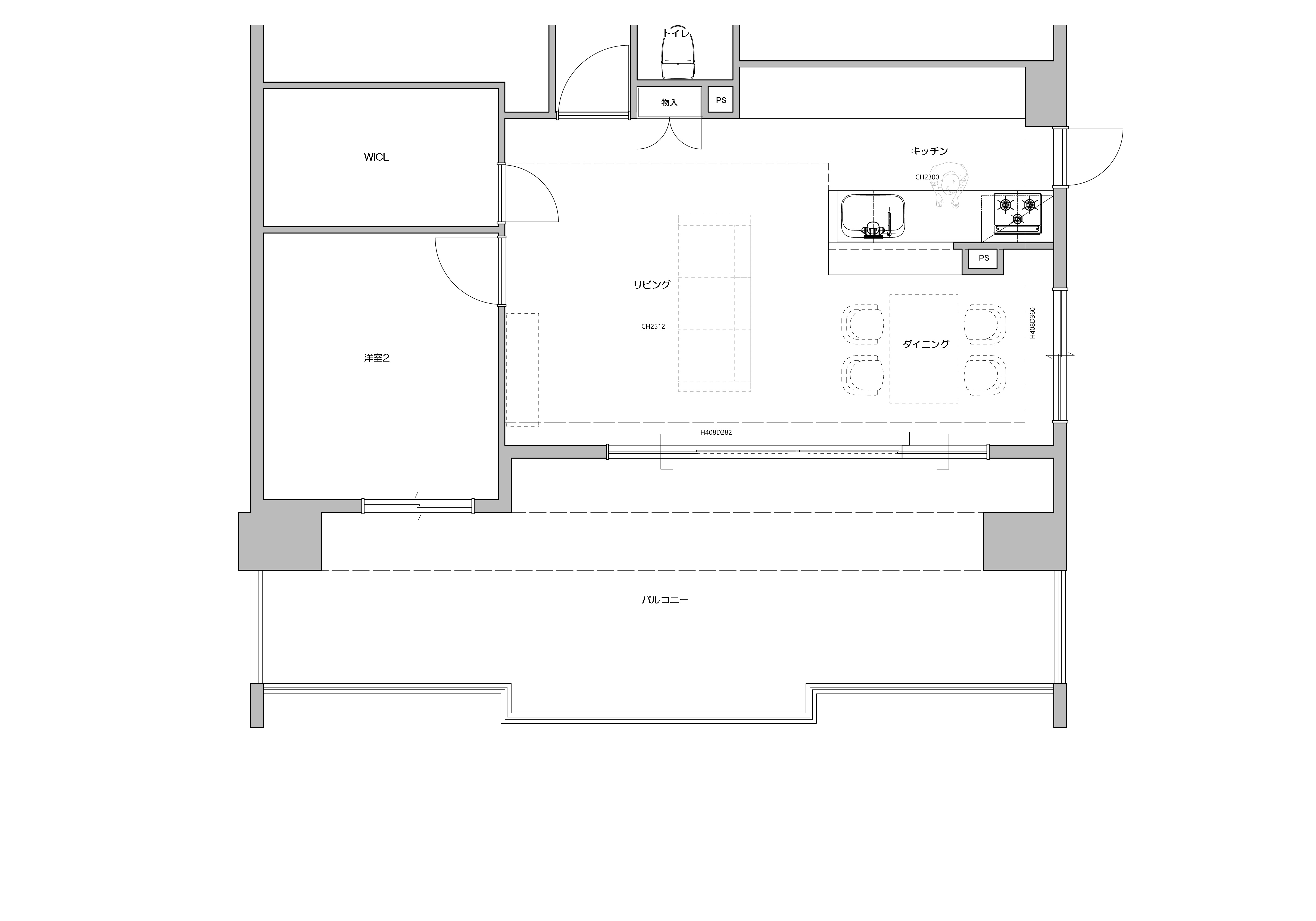
| プラン決定のポイント工夫 | ・キッチンを窓側に移設し、空いたスペースに大きなダイニングテーブルを設置し常に窓向きの配置にした。 ・ダイニングテーブルとキッチンを一体にする事で配管スペースを作り床に段差を作らずキッチンを移設。 ・リビングテーブルを仮設のダイニングテーブルに、キッチン側に収納兼椅子を作り最大8人が座れる大テーブルに。 |
|---|
施工前
施工後
担当者より
[担当者より]
モールテックスを使うことで維持管理がし易くなったり、ダイニングテーブルを取り外し可能にしたことで空間を無駄なく使える様になりました。
施主様から『思い描いていたものが全て叶って、私達にフィットしたキッチンになっていて大満足です。』というお言葉を頂きました。奥様は毎日キッチンをどんなふうにしようと考えるのがとても楽しかったので出来上がってうれしいけれど、少し寂しい気持ちになってしまうそうで、満足して頂けるリフォームになり大変嬉しく思っています。
[お客様より]
ベランダ越しに眺める外がとても気に入っているのでこの配置に大満足です。希望だったモールテックスをキッチンやダイニング、柱型に採用する事で、まるで昼はカフェ、夜は間接照明もありバーの様な雰囲気に。リノベーションしてからは友人を良く招いてパーティーをするようになりました。



















