海と空と過ごすリゾートハウス
大開口から海と空を眺めることが出来る景色を最大限に楽めるように提案
天井の高さを際立たせる空間造り
施工事例データ
| 築年数 | 22年 |
|---|---|
| 建築種類 | RC造り |
| 施工床面積 | 180㎡ |
| 工事日数 | 5ヵ月 |
| 家族構成 | 2人 |
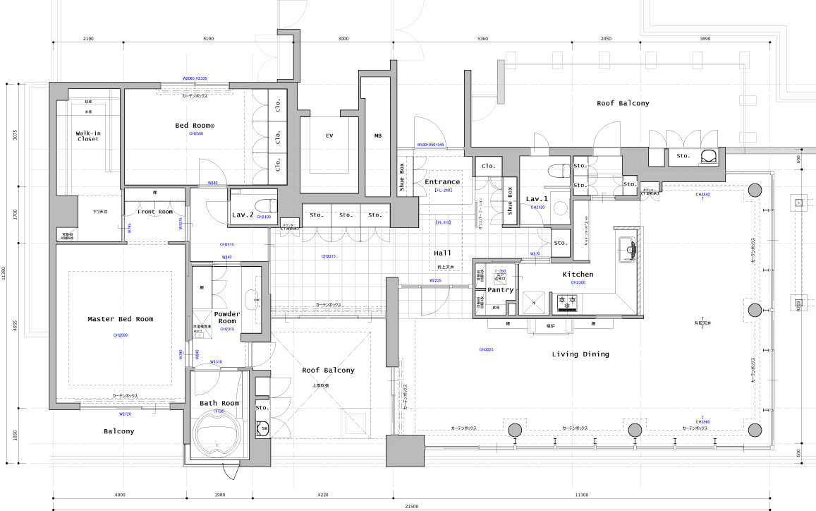
| 施工箇所 | リビングダイニング、キッチン、洗面、トイレ、和室、UB |
| 施工内容 | 全面リフォーム |
| 工事金額 | 5000万円 |
| 担当 | 田中・松長 |
| お客様のご要望 | ・キッチンをオープンキッチンにしたい。 ・キッチンの移設。 ・天井の高さを意識して作って欲しい。 |
|---|
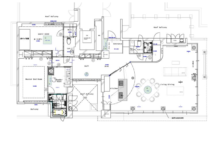
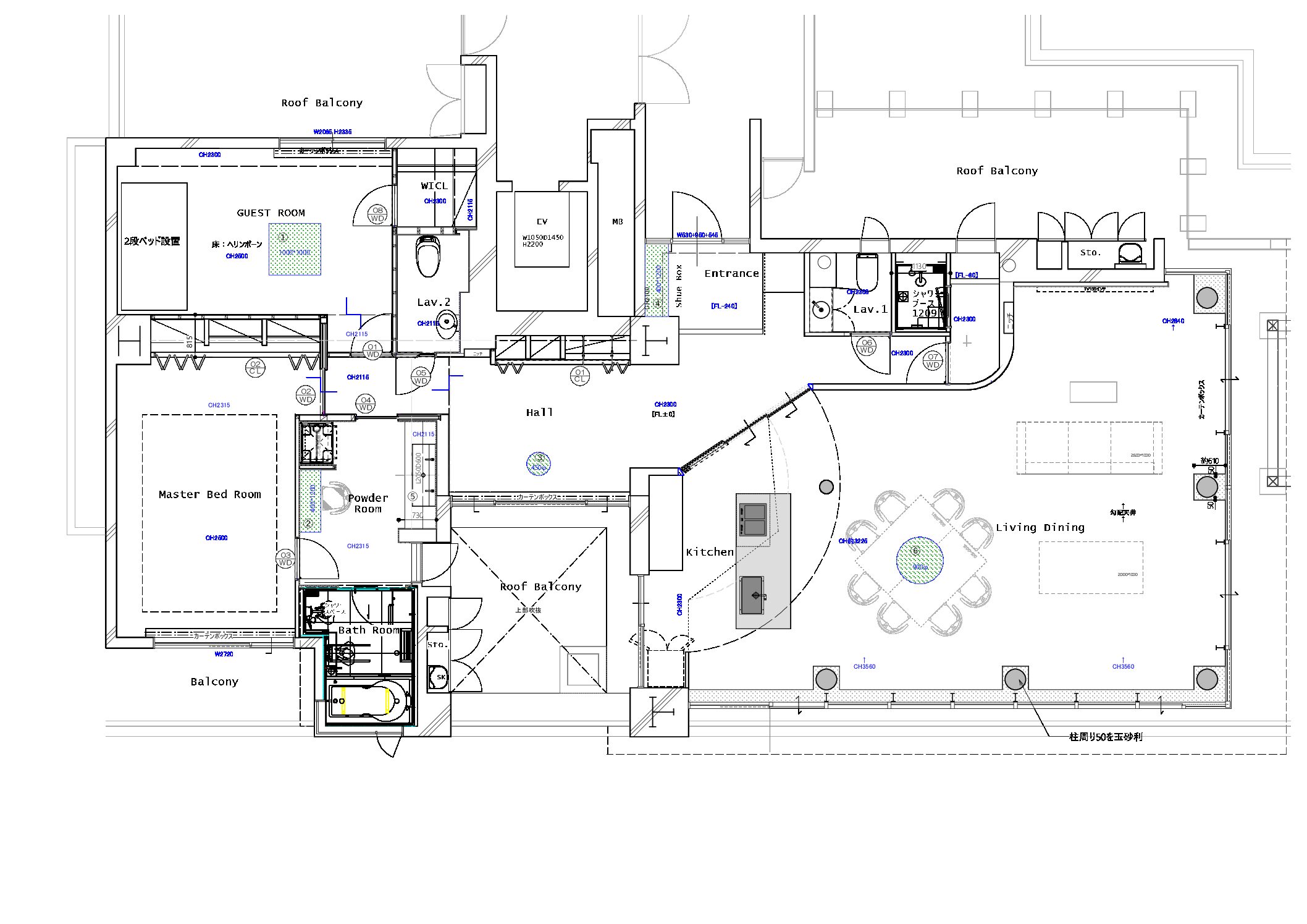
| プラン決定のポイント工夫 | ・ダイニングとリビングとの部屋の境目になる角の壁に丸みを持たせて空間の一体感を出しました。 ・リビングにある既存の柱を利用し、リビング入口の天井の高さをあえて下げて廊下の天井の高さと合わせることで、リビング全体の天井の高さを最大限に魅せることが出来、空間の一体感と広さを感じられるようにしました。全体に白を基調としたことと、低い所から、窓に向かって広がる高さと空間が、眼下に広がる海と空の青の景色を、より一層美しく楽しんで頂ける様に意識しました。 |
|---|
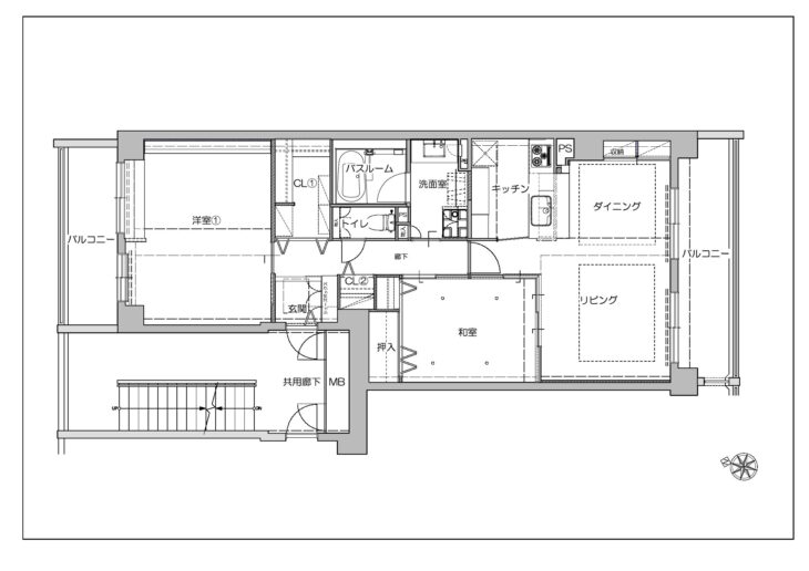
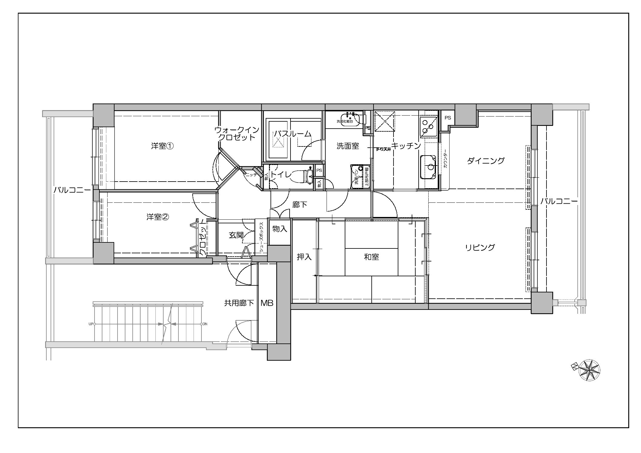
施工前
施工後
担当者より
[担当者より]
なかなかこのような大規模なリノベーションを担当する事がありませんので、大変貴重な経験をさせて頂きました。お客様にも喜んでいただけて、とても達成感のある仕事が出来て嬉しく思っております。
[お客様より]
1件目の自宅から2件目の別荘での依頼で、既に信頼関係があり、安心して任せることが出来ました。こちらの要望を聞きながら進めて下さり、細かな所までのこだわりが感じられ、本宅よりこちらに引越しをしたくなる位に想像以上の素敵な出来上がりで大満足です。







































