幸せと夢がいっぱい詰まった楽しい家
これからのレトロを取り入れながら
キッチンを家の中心に
施工事例データ
| 築年数 | 20年 |
|---|---|
| 建築種類 | 木造 |
| 施工床面積 | 85㎡ |
| 工事日数 | 3ヵ月 |
| 家族構成 | 3人 |
| 施工箇所 | リビングダイニング、キッチン、洗面、トイレ、和室、UB |
| 施工内容 | 全面リフォーム |
| 工事金額 | 1000万円 |
| 担当 | 小出・前田 |
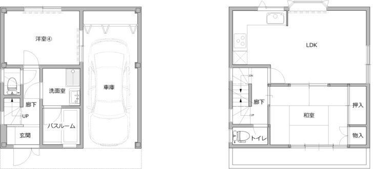
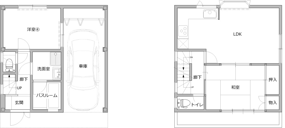
| お客様のご要望 | ・レトロな物が好きで、好きな物を集めた家にしたい。 ・キッチンを家の中心にしたい。 ・1階の暗く狭い玄関を広く明るくしたい。 |
|---|
| プラン決定のポイント工夫 | ・レトロな小物やタイルを取り入れながら、これからのレトロを考えて既存のお客様の私物に合うようにそして部屋の良さを出すように提案していきました。 ・壁向きのキッチンをオープンキッチンでリビングに向く様に配置。にぎやかな楽しい時間が生まれるような形を提案しました。 ・1階の暗く狭い玄関は、すぐ隣にあった浴室を移設させて、広い土間に。土間の窓はお風呂の時に使用していた窓を利用。 |
|---|
施工前
施工後
担当者より
[担当者より]
色々なご要望を叶えるために考える事は、決して安易ではありませんでしたが、お客様と真剣に向き合うことで、信頼感が生まれとても遣り甲斐を感じられました。また、『実際に住んでみて、更に良かった』と言ってもらえた時はとても嬉しかったです。
[お客様より]
こちらの要望を色々と聞いて頂き、想像以上の物が出来て、とても満足しています。キッチンを移設して頂いたことで、家族みんなで料理をしたり、料理教室を始めてたくさんの方に来て頂く様になったりと、とても楽しい日々を送っています。
今後も何かあればゆめやさんにお願いしたいと思います。
























