神戸市 N様邸 マンションリノベーション
Favorite Places
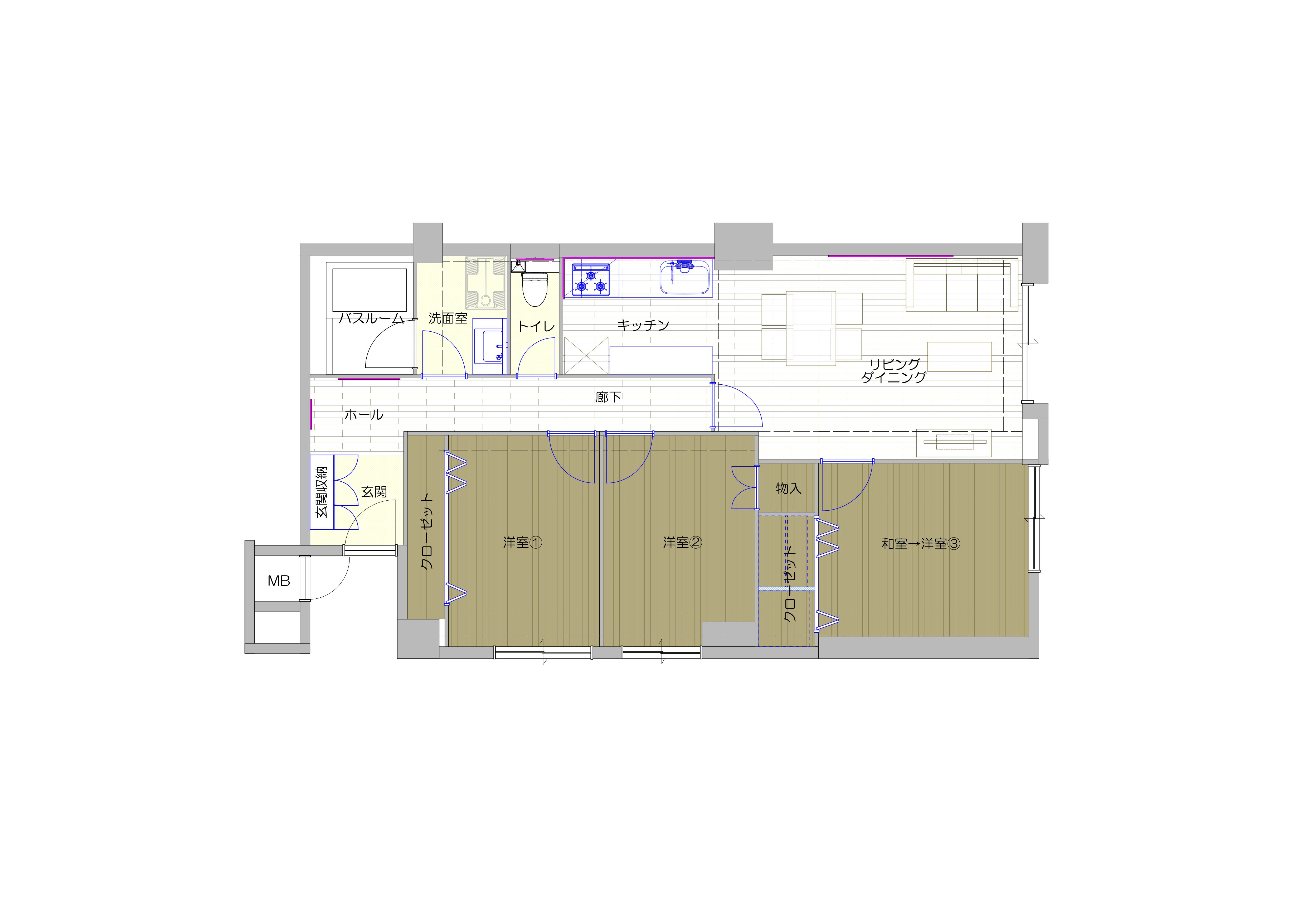
施工事例データ
| 建築種類 | RC造 |
|---|---|
| 施工床面積 | 74㎡ |
| 工事日数 | 30日間 |
| 家族構成 | 夫婦+子ども |
| 施工箇所 | 間取変更(和室を洋室に)、内装、建具取替、一部設備取替(キッチン、洗面台)、タイル工事 |
| 施工内容 | 仮設・解体工事、木工事、設備工事(キッチン、洗面台)、内装工事(フローリング含む)、タイル工事、電気工事等 |
| 工事金額 | 440万円 |
| 担当 | 佐藤、太田 |
| お客様のご要望 | 中古物件をご購入されてのリフォーム。 和室を洋室にし、子ども部屋にしたいとのご希望でした。 |
|---|
| プラン決定のポイント工夫 | 大きな間取り変更はありませんが、内装や建具を変える事で、お好みの雰囲気のお部屋に生まれ変わりました。 |
|---|
施工前
前にお住まいだった方がアンティークな雰囲気にリフォームをされていて、フローリングや建具、家具等は全てミディアムブラウンで統一され、重厚感のある落ち着いた雰囲気のインテリアにされていました。状態は良かったのですが、お好みのインテリアではない事が引っ掛かっておられました。
重厚感のある框扉で素敵なキッチンだったのですが、少し暗い雰囲気でした。
当初、洗面室は内装だけやりかえようと思われていました。天井の廻縁が全室にあり、あまりお好みではありませんでした。
玄関
玄関土間
施工後
和室を子ども部屋にする為にLDに壁をおこしましたが、内装を明るくし
圧迫感を感じない空間に。奥様お好みのインテリアでまとめました。
和室を子ども部屋にする為にLDに壁をおこしましたが、内装を明るくし
圧迫感を感じない空間に。奥様お好みのインテリアでまとめました。
奥様お気に入りのエコカラット。可愛らしくなり過ぎず
家具やインテリアともバランスがとれてLDのアクセントになりました。
お掃除の楽さでお気に召して頂けたトクラスのキッチン。
使い勝手も良く、毎日快適にお料理して頂いています。
奥様一目惚れのタイルをキッチンに。長く過ごすキッチンだからこそ一番のお気に入りを。好きな物が目にはいると、お料理の時間が更に楽しくなります。
大容量の洗面台をお気に召され急遽取替に。沢山収納出来て大満足されてます。育ち盛りのお子様のお洗濯物が大変なので、室内干しが出来るようにしました。 洗面台:エポック/トクラス
玄関から家に入ると、正面にアクセントのエコカラットを。
エコカラットの印影やデザインをお楽しみ頂ける様に天井にダウンライトを設置しました。ご家族皆様の1番のお気に入りの空間です。
白色の建具とこだわりのフローリングでシンプルですっきりとした廊下になりました。
収納付きトイレは既存のままで、内装は黒系で格好良くまとめる事に。
他のお部屋とは異なる雰囲気で、お気に入りの空間になりました。
担当者より
当初予定になかったドアを取り替えるプランを取り入れて頂けた結果、お家全体のインテリアがイメージ通りに統一され、お気に召して頂く事が出来ました。お子様お2人も、ご自分のお部屋の壁紙をお選びになり、ご家族皆様でご準備からお楽しみ頂けました。納得のいくリフォームが出来て良かったとお言葉を頂け、嬉しく思っております。























