神戸市 N様邸 マンションリノベーション
風を感じるシンプルライフ
施工事例データ
| 建築種類 | RC造 |
|---|---|
| 施工床面積 | 57㎡ |
| 工事日数 | 約30日間 |
| 家族構成 | 夫婦 |
| 施工箇所 | 全面改装(浴室以外) |
| 施工内容 | 仮設・解体工事、木工事、設備機器工事、内装工事、電気工事・その他工事 |
| 工事金額 | 325万円 |
| 担当 | 田中、梶本 |
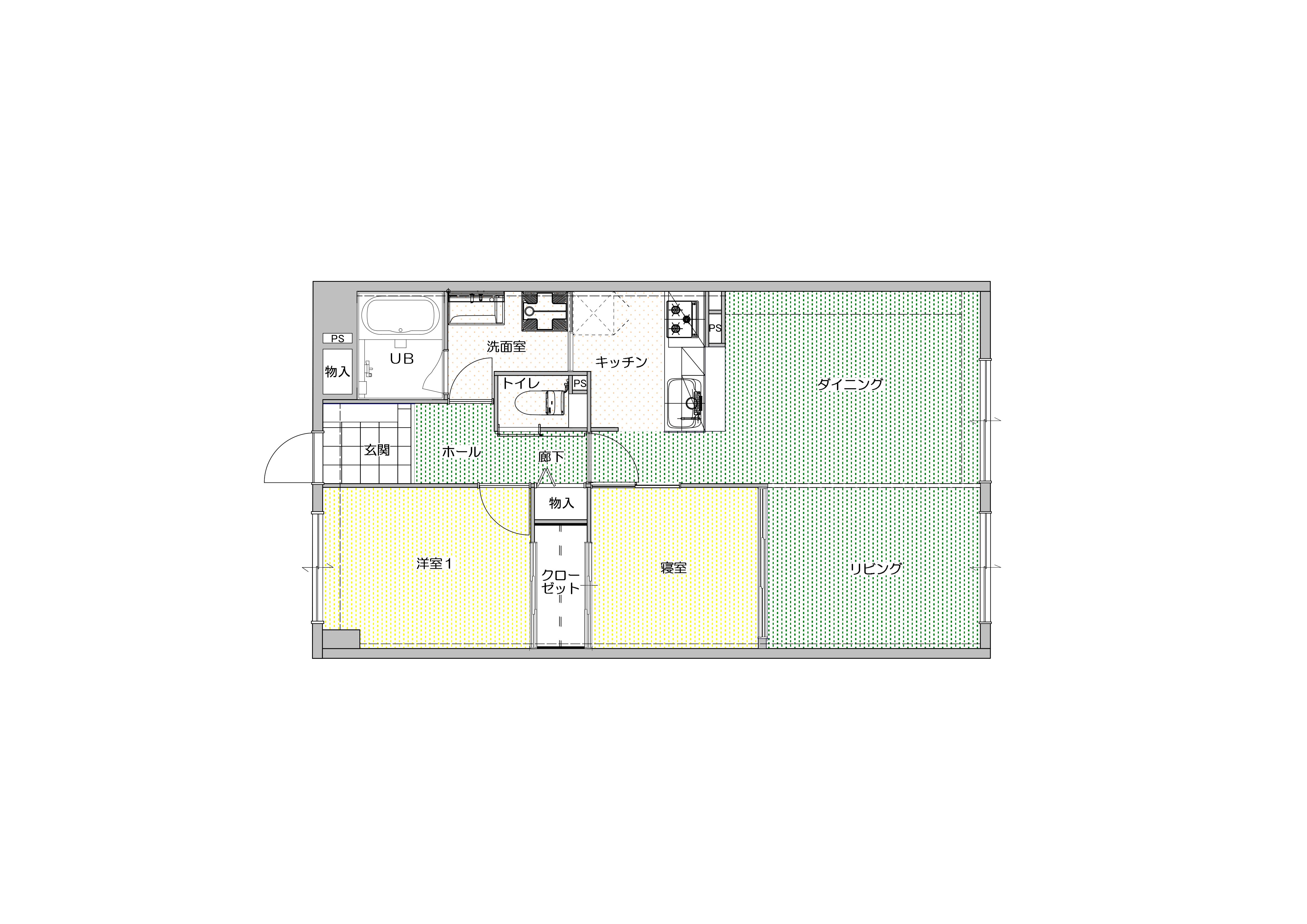
| お客様のご要望 | 以前は、和室2間+洋室1部屋のシンプルな間取りでした。段差も多く、和室が活かされていませんでした。 |
|---|
| プラン決定のポイント工夫 | リビングダイニングとの境目、キッチンの入口部分にあった段差をなくし、部分的に壁を撤去。洋室2室の間にあるクローゼットは、両サイドからアクセスでき、換気にうってつけのウォークスルー仕様にしました。 |
|---|
施工前
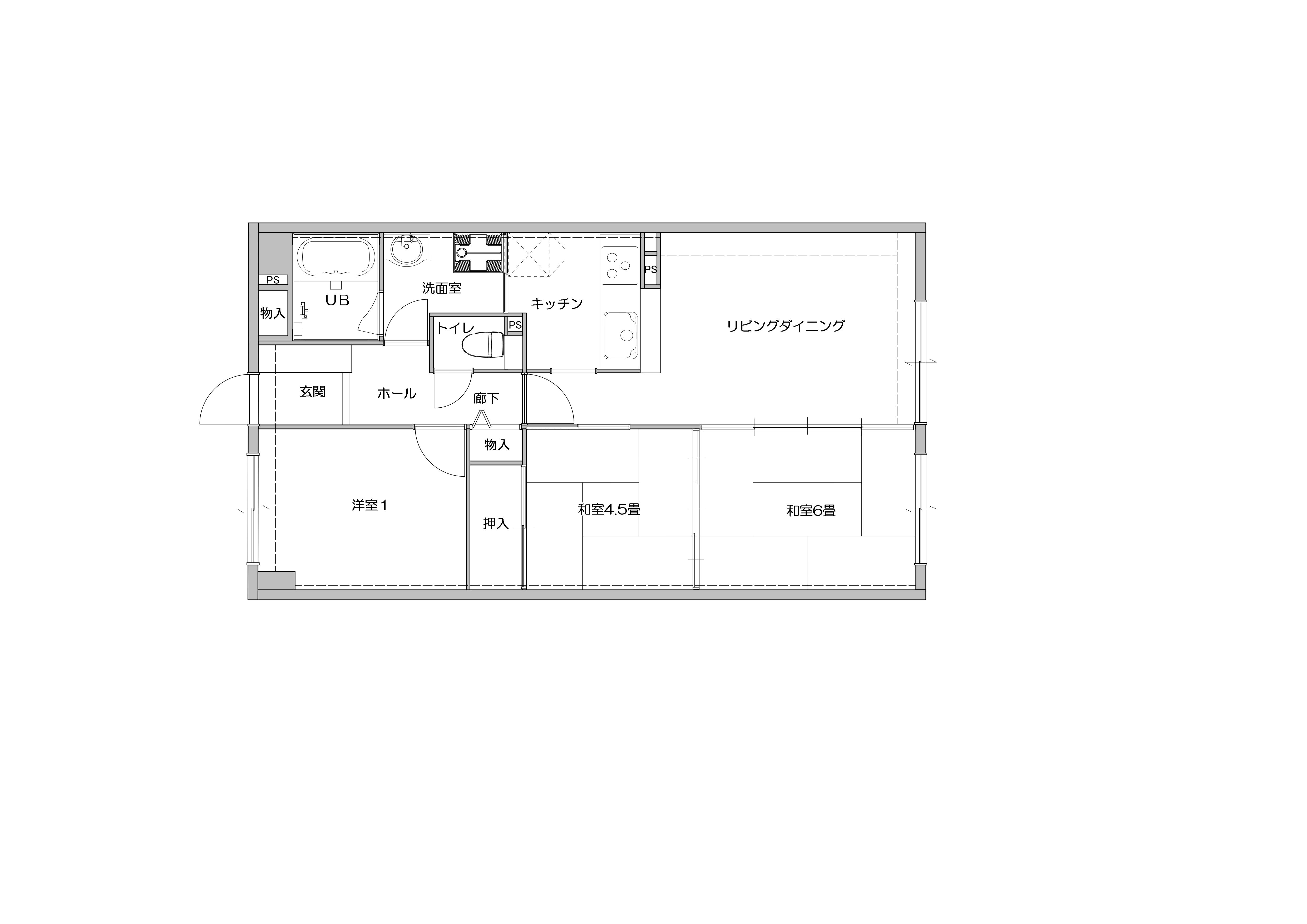
活かされていなかった和室2間。
暗い印象のトイレ。リビングとの境、キッチンの入口には段差がありました。
旧式タイプのトイレは、お掃除がしにくい凹凸が多いデザイン。
収納に困るデザインの洗面台。
少し暗い洗面室。
少し暗い印象の玄関。
施工後
和室6畳をLDに取り込んだことで、広々とした空間になりました。またLDに面する大きな2つの掃き出し窓からは、中庭が見渡せ、外からの視界は遮りつつ季節の移ろいを感じることが出来ます。
ダイニングと寝室の間にある3枚引戸を開ければ、更に空間に広がりが生まれます。
寝室<CLOSE>
寝室<OPEN>
<通風イメージ>
東~西へ 風が通り抜けてくれるおかげで、夏もエアコンなしでも涼しく過ごせます。また、湿気のこもりやすいクローゼットもカビ知らずで快適です。
<洋服ナシ>ハンガーパイプは、小柄な奥様でも手の届きやすい位置へ下げて設置。
<洋服アリ>ホスクリーンのポールを中間に二カ所設置することで補強をしています。
パイプスペース横のデットスペースにニッチを製作しました。電話や小物置きとして重宝されています。
ニッチ:クロス巻込み仕上げ
内部仕様:棚柱セット(ホワイト)/棚板 アートランバー(南海プライウッド)
ウォークインクローゼット~寝室
白を基調としたキッチンは、清潔感にあふれ、とても広く感じられます。 キッチン LIXIL:シエラ/I型W2250mm・扉柄:ペールホワイト
手洗いなしのタンク式トイレへ取替えました。お手入れのしやすいフチなし形状が、毎日のお掃除を楽にしてくれます。トイレ:LIXIL/アメージュ
配置は同じでも、内装仕上げを新しくし、照明も取替えたことで、広々と明るく使い勝手の良い洗面室になりました。 洗面化粧台 LIXIL:ピアラ/扉柄:パウダーピンク
玄関スペースを広くするために、薄型のフロートタイプの玄関収納を設置玄関収納下は、靴のちょい置きにとても便利です。 玄関収納:ハピアベイシス/カラー:ネオホワイト(Daiken)



























