神戸市 M様邸 マンションリノベーション
私たち“らしく”暮らす
施工事例データ
| 築年数 | 8年 |
|---|---|
| 施工床面積 | 104㎡ |
| 工事日数 | 30日 |
| 家族構成 | 夫婦 |
| 施工箇所 | 全面リフォーム |
| 施工内容 | 仮設・解体撤去工事、木工事・建具工事、内装工事、電気工事、キッチン・給排水工事、収納造作工事、床暖房工事 |
| 工事金額 | 694万円 |
| 担当 | 田中、萩原 |
| お客様のご要望 | 広々としたリビングが実現できそうな築浅マンションを購入し、ご夫婦だけの暮らしに相応しいゆとりある住まいをご希望でした。 ・キッチン移設を含む間取り変更 ・内装の変更 ・照明の変更 ・据え付け収納の設置 などのご要望をいただきました。 |
|---|
| プラン決定のポイント工夫 | ロードバイクを始めアウトドアスポーツなどの趣味をお持ちで、ご友人も多くホームパーティーを楽しむなど存分に人生を楽しまれているご夫妻のためにスタイリッシュに暮らせる住まいをご提案させていただきました。 |
|---|
施工前
閉鎖的なキッチンから、オープン対面式に生まれ変わります。
収納力のある大容量の造り付け収納へ。
大きな窓を活かした明るいお部屋を作っていきます。
施工後
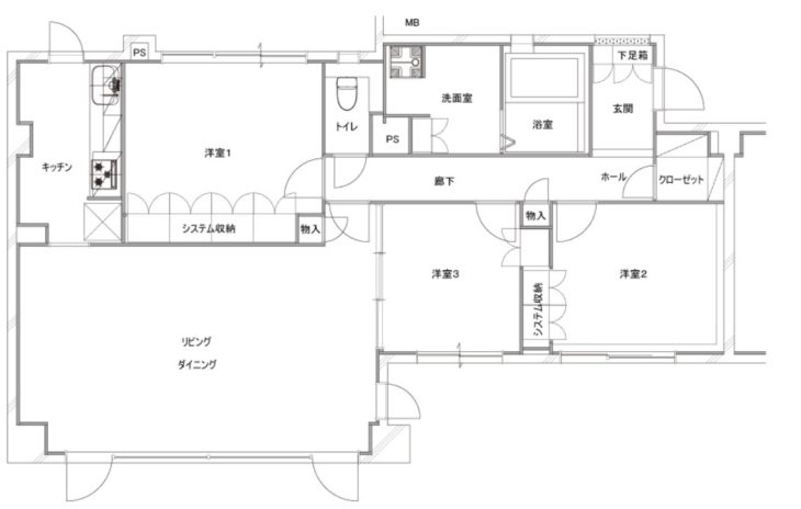
洋室一室をなくし間取りを大きく変更。閉鎖的なキッチンからオープン対面キッチンに生まれ変わりました。明るく開放的なキッチンは周りを囲めるように使え、ホームパーティーにもぴったり。
キッチン背面には、家電収納やカップボードを兼ねた大容量の収納を造り付け。大きな梁をすっぽり隠すように壁一面を収納にしました。梁が張り出したところは奥行の浅い収納としてマグカップなどが納まります。透過性のある扉を採用することで、閉じた状態でも中身が感じられ、明るく、空間を広く感じるスタイリッシュな空間を演出します。
キッチン/トクラスベリー
キッチン/トクラスベリー
引越しにあわせて購入された無垢一枚板のダイニング/リビングテーブルにあわせてフローリングをご提案。床暖房に対応した幅広のマンション用フローリングは表面の木目も美しく高級感のある仕上がりになりました。ご要望にあわせてリビングの一画にはロードバイクを飾るスペースも。
窓に面して、パソコンワークなどに便利なカウンターを設置しました。窓は天然木の質感がやさしく落ち着いた印象のウッドブラインドで統一。日々の暮らしを楽しく快適に送れるよう、工夫を凝らしました。
ダイニングには、ディスプレイもできる埋め込み収納を造り付けました。バーカウンター風のオープンスペース、背面にミラー、上部にライトを仕込んだディスプレイスペース、フロート感のあるデザインがホームパーティーを楽しむお洒落な空間にぴったり。
担当者より
広くすっきりとしたリビングダイニングにアクセントとなるキッチンの「藍色・あいいろ」が全体のイメージのポイントとなり、フローリングの色や造作壁面収納などがまとまりました。
何かポイントとなるものを決められるとイメージがふくらみますね!すてきなご夫婦にぴったりの空間となりました。




















