神戸市 K様邸 浴室&マンション リノベーション
風が通り抜ける家
施工事例データ
| 建築種類 | RC造 |
|---|---|
| 施工床面積 | 80㎡ |
| 工事日数 | 40日間 |
| 施工箇所 | 全面改装、水廻り設備取替(キッチン、浴室、洗面台、トイレ)、内窓 |
| 施工内容 | 仮設・解体工事、木工事、木製建具・家具工事、設備工事(キッチン、システムバス、洗面化粧台、トイレ)、内装工事、タイル工事、電気工事、内窓取付工事等 |
| 工事金額 | 950万円 |
| 担当 | 稲垣、千賀 |
| お客様のご要望 | 中古物件購入でのフルリフォームでこれからを暮す家をご希望でした。 |
|---|
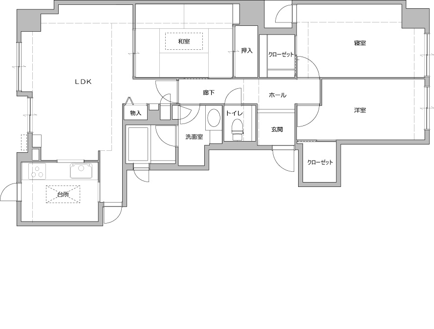
| プラン決定のポイント工夫 | 基本の間取りはほぼ変えず、扉の位置を工夫する事により、風が通り抜ける快適な家になりました。 |
|---|
施工前
【浴室】お手入れがしにくい従来の浴室。
【トイレ】お手入れがしにくい、凹凸の多いデザインのトイレでした。
【洗面室】少し暗い印象の洗面室。
【キッチン】広いキッチンでしたが、収納がしにくい開き扉
【キッチン】開口部が小さく、暗い印象のキッチンでした。
【リビング】
【和室→洋室】
【ベッドルーム】
【洋室】
【収納・玄関】
【収納・玄関】
施工後
【浴室】お手入れがしやすい浴室に。洗い場のカウンターに洗面器が置けるので、体への負担も軽減されました。 システムバス:WFシリーズ/TOTO
【トイレ】お手入れ楽々のトイレ。トイレ横の収納も必要な分だけにし、すっきるしました。 トイレ:ネオレストRH/TOTO
【洗面室】洗面台の間口を広げて使いやすくなりました。収納力もアップし使い勝手も良くなりました。 洗面化粧台:オクターブ/TOTO
【洗面室】廊下側の収納を洗面側の取込み、収納量がアップしました。
【キッチン】キッチンとカップボードでゃ引出しタイプにする事で、収納力が大幅にアップ。すっきり片付く空間になりました。 システムキッチン&カップボード:Berry/トクラス
【リビング&ダイニング】部屋の中心TVスペースにはアクセントでタイルを張りました。 エコカラット:グラナスルドラ(ホワイト)/LIXIL
【リビング&ダイニング】簡単な食事は直ぐ取れる様にカウンターを設置し、手がすぐ届く所に収納家具を配置しました。 フローリング/朝日ウッドテック
【リビング】和室を趣味の為のスペースに。扉を開けるとリビングと一体になり、広がりを感じさせることが出来ます。
【和室→洋室】和室→趣味の部屋となり、壁一面の収納を設置。押入れを撤去し、WICLを新たに作りました。
【ウォークインクローゼット】リビングから寝室へとつながるWICL。どちらからでもアクセス出来る収納はとても便利で風通しも良くなります。
【ベッドルーム】以前あったWICLを和室押入れとつなげる事でリビングから寝室まで一直線につながりました。
【洋室】洋室2はドアの取付位置を変える事でリビングから廊下を通り、室内まで一直線につながり風を通す事が可能になりました。
【収納・玄関】玄関を広げ、ベンチや手すりを設置する事で使いやすい玄関に。正面壁には飾り棚を設け、アクセントにタイルを張りました。 エコカラット:ヴィーレ(ホワイト)/LIXIL 土間タイル:ロカ/KYタイル
担当者より
お打合せは直接出来なかったものの、お母様のご様子や趣味を伺い、故郷を離れても気持ち良く安心して快適に暮らす事が出来る様にとプランしました。お母様を思いやる優しい娘様のお気持ちをお手伝いする事が出来て大変うれしく思いました。
























