神戸市 M様邸 キッチン&戸建て リノベーション
家族が集う Family Living
施工事例データ
| 建築種類 | 軽量鉄骨造 |
|---|---|
| 施工床面積 | 76.54㎡ |
| 工事日数 | 32日間 |
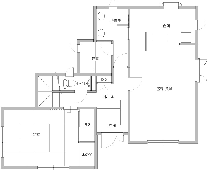
| 施工箇所 | 1階部分全面リフォーム【設備取替(キッチン、浴室、洗面化粧台、トイレ)】 |
| 施工内容 | 仮設・解体工事、造作木工事、銅製建具・ガラス工事、設備機器工事(キッチン、ユニットバス、洗面化粧台、トイレ)、電気・照明工事、ガス工事、内装工事、外構工事等 |
| 工事金額 | 845万円 |
| 担当 | 檜尾 |
| お客様のご要望 | 中古物件購入にあたり2世帯住宅にリフォームをご検討。水廻り設備の取替・内装・床暖房の設置。 |
|---|
| プラン決定のポイント工夫 | キッチン前の壁を撤去し、ダイニングとのつながりをもたせました。リビング・ダイニングには造作でパソコンカウンターや間仕切り格子などを取付、家族が楽しく集う空間に生まれ変わりました。 |
|---|
施工前
【キッチン】吊戸やキッチン横の袖壁があるため、少し閉鎖的な空間でした。
【洗面室】
【リビング】
【ダイニング】閉塞感のある対面カウンタータイプ。お子様の様子を見たり、家族との団欒を充実させるためにOPENキッチンにしたい。
【和室】
施工後
【キッチン】吊戸の無いOPENキッチンは、ダイニングとのつながりも生まれるので、愉しみながら家事ができます。手元は壁を立ち上げてダイニングから雑多なものがみえないように工夫しています。 システムキッチン:アレスタ/LIXIL
【キッチン】流し前に壁を立ち上げてキッチングッズを整理する棚を取付。レールに様々なアイテムを付ける事ができます。置き場に困るキッチンペーパーなどにとても便利です。 キッチンカウンター:タモ集成材(ウレタン塗装・オイルステン) キッチンハンガーシステム/KAWAJUN
【ダイニング~キッチン】レンジフード前と腰壁部分を残し、間仕切り壁を撤去。天井がつながることで広々とした空間となりました。キッチンの中からお子様の様子をみながらお料理したり、片付けをしながらでもご家族との会話が楽しめます。 フローリング:ライブナチュラル(ブラックチェリー)/朝日ウッドテック
【リビング】間仕切りの格子がリビングダイニングのアクセントに!お子様がダイニングで勉強できるようにとスタディーカウンターを造作しました。お手持ちの家具に色を合わせて塗装し、一体感のある空間に。タモ集成材で作った間仕切り格子とスタディーカウンターはおそろいです。
【リビング】間接照明やTVボードの後ろにはったエコカラットで楽しく家族が集うリビングとなりました。 ECOCARAT:ランド(土もの調)/LIXIL
【リビング・間接照明】空間に「光」だけをやさしく広げる間接照明は、リビングの雰囲気に落ち着きをもたらし、上質な空間に変えてくれます。また、エコカラットのテクスチャーがより印象的に浮かび上がります。
【造作建具】扉:タモ突板(ウレタン塗装・オイルステン) 枠:タモ無垢材
ガラス:リストラルKクリア厚4㎜/がらすらんど
【洗面室】きれいな一面鏡は再利用し、キャビネットのみ取替。モダンなイメージで扉面材・床材をセレクトし、水はねが気になる流し前はタイルをご提案しました。 洗面化粧台:ルミシス/LIXIL 鏡下タイル:CHAMELEON MINI BORDER/KY TILE
【洗面室】元々は廊下からの出入り口でしたが、その部分に大容量の収納を。何かと物が多い洗面室なので、収納量を重視した間取りに。
【和室】和室部分はご両親の寝室スペースに。床の間をなくし、収納を充実させました。 クローゼット建具:ベリティス/Panasonic
担当者より
床材の色をとても悩みましたが、ご提案のフローリングにして正解でした!リビングが生活の中心となっています。デザイン性もよく機能的な設備機器で新しい生活のスタートです。



















