神戸市 K様邸 キッチン&マンション フルリノベーション
家族思いの奥様が選ぶ最高の形
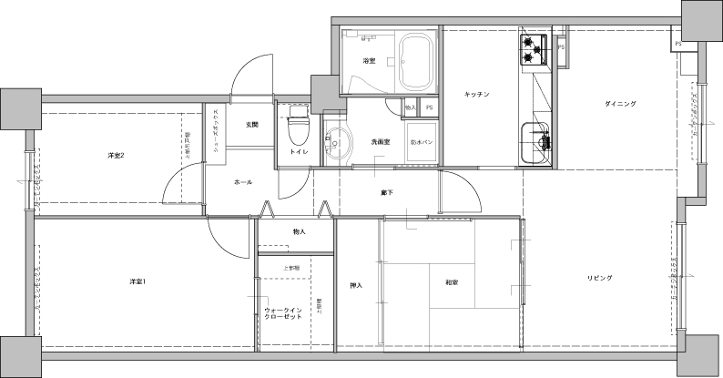
~あえて区切る!そしてつながる~
施工事例データ
| 築年数 | 26年 |
|---|---|
| 建築種類 | RC造 |
| 施工床面積 | 72.8㎡ |
| 工事日数 | 33日間 |
| 家族構成 | 夫婦+子ども2人+猫1匹 |
| 施工箇所 | 全面改装、設備取替(キッチン・洗面台・浴室・トイレ)・建具取替・造作家具 |
| 施工内容 | 仮設・解体工事、木工事、設備工事(キッチン、カップボード、浴室、洗面化粧台、トイレ)、内装工事、建具取替工事、タイル工事、電気工事等 |
| 工事金額 | 690万円 |
| 担当 | 田中、梶本 |
| お客様のご要望 | 子どもさんの成長に伴い、落ち着いて勉強できる個々の空間が必要になった為3LDKを4LDKにしたい。 部屋は区切っても、できれば日中は家の中に風を通したい。 ご主人様のお帰りが遅く、ご帰宅後もお仕事をされることもあり、落ち着いてお仕事が出来る空間と、音や光に敏感なご主人様が短時間でもしっかり安眠が取れるようにしたい。お子様の成長による生活スタイルの変化に応じた空間にしたい。経年劣化による水廻りや床の老朽化。 |
|---|
| プラン決定のポイント工夫 | 高校・大学受験を控えた2人の息子さんと猫ちゃんがいらっしゃるKさん。『日中は、間仕切りを開けることで、風を通し、猫ちゃんも自由に動き回れる広々空間として使用。夜は、各々が個々の部屋で仕事や勉強に集中しつつ、ホッと一息つきにリビングに集まる。』そんな空間になりました。 洋室②③の間仕切りには、上吊り式のノンレールの3枚引違い戸を採用。将来的にお子様が独立された後は扉をはずすだけで、大空間として使用できます。 |
|---|
施工前
【キッチン】小窓はあいているものの、日が入らず暗い印象のキッチン。
【ダイニング】ダイニングでは、ご主人様がご帰宅後お仕事をされる事も。
【ダイニング】キッチンへの小さな開口部。
【洗面室】育ち盛りの息子さんがお二人の、部活動で持ち帰る泥汚れの予洗いや洗顔の際の水はね等々、気になる点が多い洗面室。
【トイレ】新築当時のままのトイレ。凹凸が多く清掃性が悪く、空間が狭いのが悩みの種。
【リビング】部屋数と収納が足りず、みんなが気を遣い譲り合いながら過ごし、それぞれの持ち物の置場も整理出来ない空間でした。
【玄関】収納出来ない靴は、玄関土間に。
【玄関】家族4人では少し足りない玄関収納。
施工後
【キッチン】数年前に取替えたレンジフードやガスコンロはそのまま再利用。
キッチン&カップボード:アレスタ/LIXIL
キッチン&カップボード:アレスタ/LIXIL
【キッチン】キッチンカウンターは、配膳の補助台として使用出来る様、奥行きを深めに。タモの無垢材をクリアワックス仕上げにし、色合いの経年変化を楽しめるように。
キッチンカウンター:造作/ゆめやオリジナル
キッチンカウンター:造作/ゆめやオリジナル
【キッチン】パイプスペースを小さくし、垂れ壁と袖壁を撤去し、明るく開放感のあるキッチンに。
【キッチン】パイプスペース廻りやキッチン背面の収納部分にもこだわりのタイルを。
タイル:スモーキートーン/LIXIL
タイル:スモーキートーン/LIXIL
【ダイニング&キッチン】明るく広々としたLDK。収納は、見せると隠すで工夫をし、インテリアにもこだわった素敵な空間に。
フローリング:ナチュラルオークF/LIXIL
フローリング:ナチュラルオークF/LIXIL
【リビング】リビング収納は元々お手持ちの物を再利用。
建具:ベリティス(ホワイトオーク柄)/Panasonic
建具:ベリティス(ホワイトオーク柄)/Panasonic
【リビング】洋室①(奥様の部屋)との間仕切りを開けると、通風も良く、空間も広がります。
LD入口建具:クラフトレーベル(ネイビーオーク柄)/Panasonic
LD入口建具:クラフトレーベル(ネイビーオーク柄)/Panasonic
【ダイニング】独立型キッチンから、オープンキッチンになり、広々としたダイニングに。
【ダイニング】見せる収納と隠す収納と、素材や色・質感にもこだわってオシャレな空間をプランニング。
ウッドブラインド/ニチベイ
ウッドブラインド/ニチベイ
【ダイニング】収納する物を計画し、造作のダイニングカウンターを設置。
ダイニング収納:造作家具/ゆめやオリジナル
ダイニング収納:造作家具/ゆめやオリジナル
【ダイニング】ダイニング収納の最下部には、モデムやルーター等を収納する為、熱がこもらない様に設計しました。
ダイニング収納:造作家具/ゆめやオリジナル
ダイニング収納:造作家具/ゆめやオリジナル
【洗面室】意匠性と水はねへの清掃性を考え、正面はモザイクタイル貼りに、両サイドは化粧パネルを貼りに。飾り棚で見せる収納&ミラー裏収納で隠す収納に。
洗面化粧台:シーライン/Panasonic
洗面化粧台:シーライン/Panasonic
【洗面室】洗濯機まわりもすっきり片付く様に、プランニング。
フロアタイル:クロムストレート/川島織物
フロアタイル:クロムストレート/川島織物
【浴室】お手入れもしやすい、すっきりとしたデザインの浴室に。洗濯物を干せるように、ランドリーパイプを2本設置しました。
リモデルバスルームWTシリーズ/TOTO
リモデルバスルームWTシリーズ/TOTO
【トイレ】同じ広さのトイレでもすっきりと広く感じられる様に、壁の一部にアクセントクロスを貼り、視線を逃がす工夫を。
トイレ:ピュアレストEX/TOTO
フロアタイル:クロムストレート/川島織物
トイレ:ピュアレストEX/TOTO
フロアタイル:クロムストレート/川島織物
【玄関】ニッチ収納で、鍵の置場をオシャレに確保。
ニッチカウンター:造作/ゆめやオリジナル
ニッチカウンター:造作/ゆめやオリジナル
【玄関】4人分の靴や細々とした物を収納出来るように、空間を最大限に活用しシューズクロークを設置。
クロークボックス:ベリティス/Panasonic
クロークボックス:ベリティス/Panasonic
【洋室①奥様の部屋】リビング~洋室①~洋室②~洋室③まで、扉を開けると、風が南北に流れ、室内干しをしてもすぐ乾く様に。
ホスクリーン/川口技研
ホスクリーン/川口技研
【洋室①奥様の部屋】リビングに隣接しているので、奥様の家事動線も楽になりました。
【ウォークインクローゼット】ウォークインクローゼットと奥様のお部屋は、出し入れに必要な開口幅も考慮し、あえて建具は設置しない方向に。
【洋室②お子様(長男)の部屋】それぞれの部屋の建具を開放する事で、南北にかけて風が流れる設計に。
【洋室③ご主人様の部屋】将来的な家族構成の変化にも対応できる様、ご主人様と長男君の部屋は建具のみでの仕切りに。
【洋室③ご主人様の部屋】扉をしめると、それぞれのプライベートな空間を確保する事が出来ます。
建具:ベリティス(ホワイトオーク柄)/Panasonic
建具:ベリティス(ホワイトオーク柄)/Panasonic

























