神戸市 I様邸 トイレ&マンションリノベーション
「好き」と暮らすしあわせ
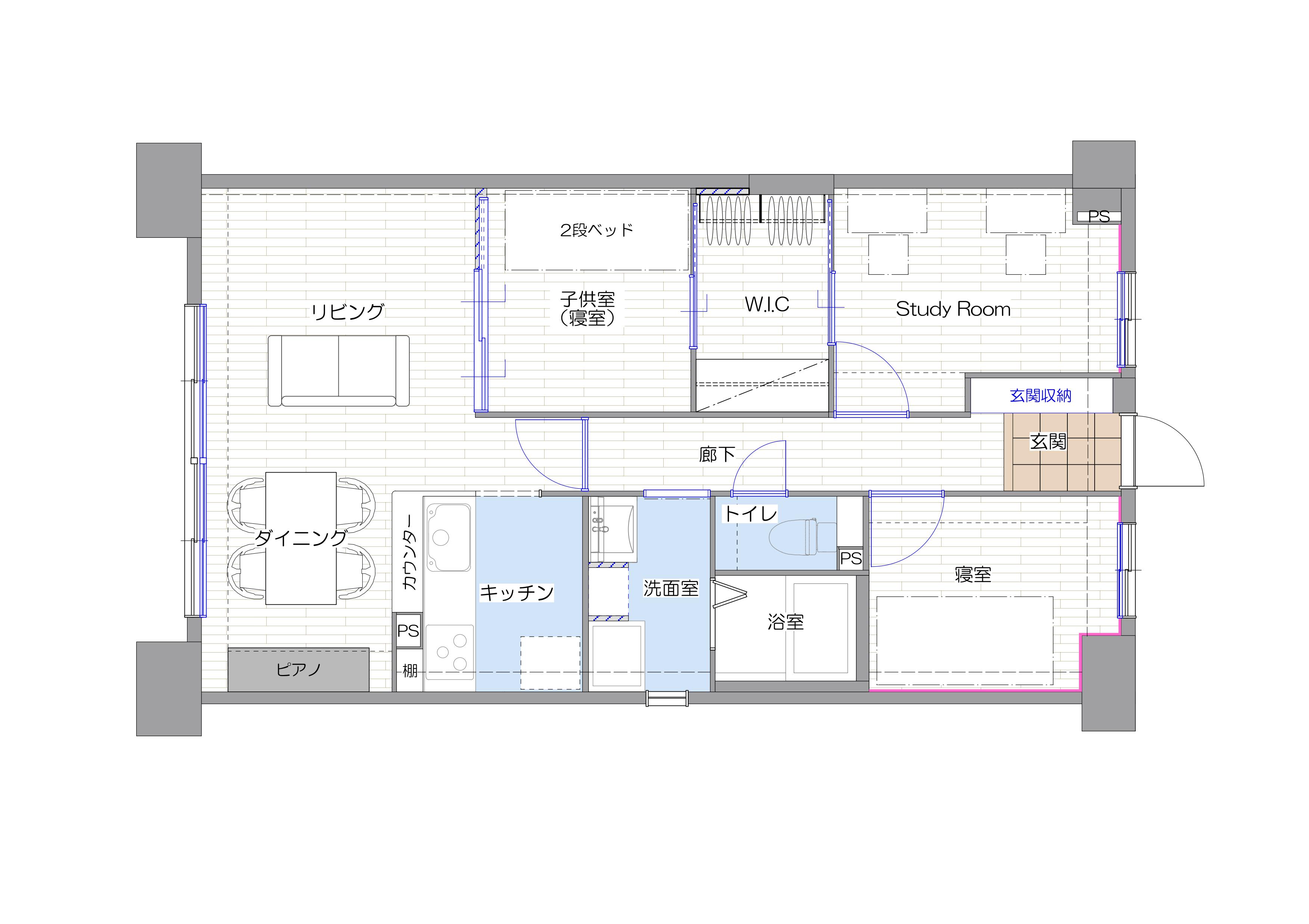
施工事例データ
| 建築種類 | RC造 |
|---|---|
| 施工床面積 | 63㎡ |
| 工事日数 | 20日間 |
| 家族構成 | 夫婦+子ども2人 |
| 施工箇所 | 間取変更、内装、建具取替、玄関収納取替 |
| 施工内容 | 仮設・解体工事、木工事、内装工事、他工事 |
| 工事金額 | 300万円 |
| 担当 | 白勢、檜尾 |
| お客様のご要望 | 収納スペースを確保し、自分好みのインテリアで統一し、過ごしやすいお部屋にしたい。 |
|---|
| プラン決定のポイント工夫 | W.I.Cを中央に配置し、お子様の成長によりフレキシブルに部屋割りができるように、エアコンが設置できない部屋のために風の通り道を確保。 |
|---|
施工前
【リビング】
【ダイニング】
【ベッドルーム】
【キッチン】
【玄関】先々を考えると、収納量が足りない玄関収納。
【廊下】
施工後
【トイレ】こだわりのクロスで、お気に入り空間に。
【洗面室】設備機器はそのままで内装工事のみ。収納スペースもしっかり確保。床の長尺シートがアクセントに◎
【洗面室】新しく造作した間仕切で収納スペースを造りました。
【リビング】クロス・フローリングと建具を変えるだけで、部屋のイメージががらりと変わりました。
【ダイニング】ドアを閉めればすっきりと、開けるとお子様BEDROOM~W.I.C~STUDYROOMとつながります。
【ダイニング】ダイニングの一面はクロスの色を変えてナチュラルな木の色、ブルーにドアと幅木のホワイトがアクセントに。
【キッチン】キッチンにもアクセントクロスを。お気に入りの色に囲まれ、料理も
楽しく!
【廊下】ドアを開けると、リビングと同じ水色の空間が広がります。「好き」な色にかこまれ、家に帰ってきたとたんにしあわせな気持ちになれます。
【ベッドルーム】お子様の2段ベッド横のクロスをアクセントに、明るい色調のクロスでかわいらしく。ペパーミントグリーンのストライプアクセントクロス。
【玄関】80センチ幅のトールキャビネットと80センチ幅のフロアキャビネットの組合せでエントランス収納をプランしました。収納量もしっかり確保しつつ、ディスプレイスペースもとりました。テラコッタ調のタイルで素敵にリニューアル!
担当者より
「好き」な色、ブルーをメインに、別世界のお部屋になるようにと工夫しました。これからますますご自分の好きなインテリアイメージに作りあげていただきたいと思います。






















