神戸市 K様邸 トイレ&マンション フルリノベーション
こだわり抜いたインテリアでお洒落で上質な空間に
施工事例データ
| 建築種類 | RC造 |
|---|---|
| 施工床面積 | 95㎡ |
| 工事日数 | 45日間 |
| 家族構成 | 夫婦 |
| 施工箇所 | 一部間取変更、設備取替(キッチン、トイレ)、内装工事、照明工事、内窓取付工事等 |
| 施工内容 | 仮設・解体工事、造作木工事、設備工事(キッチン、トイレ)、内装工事、配線工事、内窓設置等 |
| 工事金額 | 627万円 |
| 担当 | 白勢、太田 |
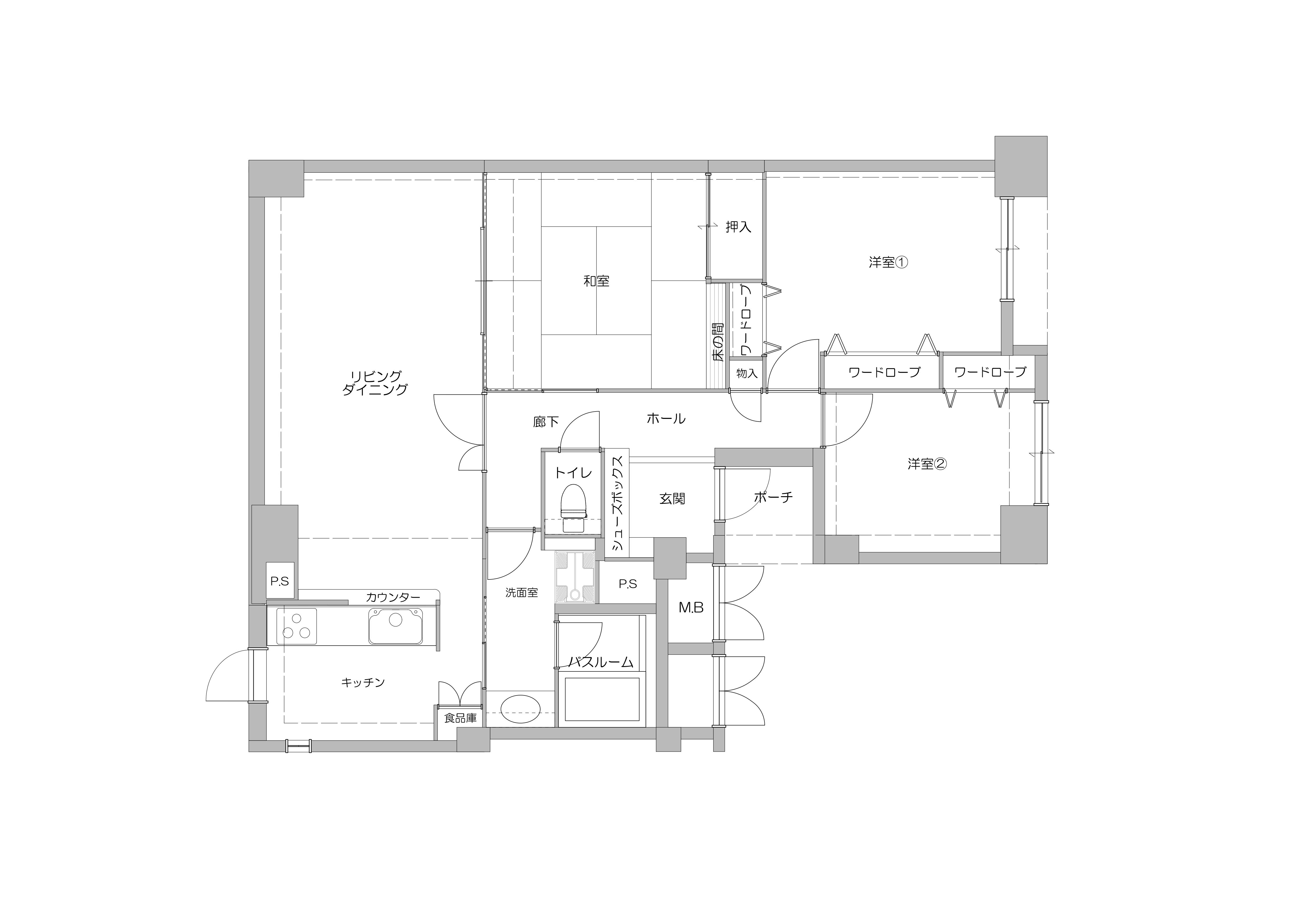
| お客様のご要望 | 収納スペースが不十分で、入りきらない荷物が、少し広い和室に置かれていました。長い間いつかリフォームをとご検討されており、内装も自分好みにこだわりたいとの事でした。 |
|---|
| プラン決定のポイント工夫 | 和室を縮小し、その分のスペースを利用してウォークインクローゼットや押入、書斎等の空間を確保し、適材適所にしっかりと収納スペースを設けました。お手持ちのお気に入りの家具と、新調される家具と、内装材がマッチする様にお打合せを重ねました。 |
|---|
施工前
吊戸が高過ぎて、使い勝手が悪く収納としてあまり機能していませんでした。
お掃除がしにくい凹凸の多いデザインのトイレ。
少し暗い印象のキッチン。
リビングダイニングにピアノを置いていました。
和室にキャビネットを置いていました。
玄関の顔のお気に入りのコンソール。
洋室①にあった吊戸は、高い位置だった事もあり、使い勝手も悪く使用されていませんでした。
外壁に面した窓は結露が悩みでした。
施工後
トイレもすっきり収納が出来、明るく広い空間になりました。 トイレ:レストパル/TOTO
洗面台は数年前に取替済だった為、壁紙のみの張替え。廊下の壁紙とお揃いのストライプ柄にし、統一感を出しました。 壁紙:リリカラ
リフォーム計画前からお気に召されていたタカラのキッチンに。キッチン横の袖壁を撤去したことで、キッチンが明るくなりました。 キッチン:レミュー/Takara Standard
背面収納もキッチンとお揃いのタカラ。収納力たっぷりですっきりしました。 カップボード:レミュー/Takara Standard
キッチンカウンターもインテリアに合わせて、オーダーで作成。
お気に入りのダマスク柄のクロスが、インテリアマッチし上質な空間になりました。 壁紙:リリカラ
落ち着いた雰囲気のリビング。
大正ロマン風の和室は、LDの戸襖を開けたままにしておいても◎
廻縁がアクセントに。お手持ちの家具や照明と、内装が絶妙にマッチしました。
大正ロマン風の和室に。お手持ちのピアノや衣文掛けもしっかり空間に馴染みました。
ウォークインクローゼットから和室の通風を考慮し、和室のインテリアと合う室内窓をオーダー作成しました。
廊下のクロスは腰見切りを入れて、上下で貼り分けを。上はダマスク柄、下はストライプ柄。 壁紙:リリカラ
お手持ちのコンソールもマッチし、思い描いていた玄関廊下に。
お気に入りの木目柄の壁紙で、山小屋風がテーマの書斎。 壁紙:サンゲツ
書斎のデスクと棚は、こだわりの無垢の一枚板。
ウォークインクローゼット。収納する物に合わせて棚を配置。 WIC入口建具:ベリィティス(ウォールナット)/Panasonic
WICの中に、ご趣味のオーディオ機器を置くために、スピーカーの配線等も事前に壁の中に仕込みました。
こだわりのクロスでシンプルだけど、可愛いお部屋に。 クローゼット建具:ベリィティス(しっくいホワイト)/Panasonic
以前は結露があったのですが、内窓・断熱材を設置し、安心して収納出来るクローゼットに。
クローゼットは、収納する物、季節の入替等も考慮し計画。
担当者より
お打合せでご夫婦様のお好みやこだわりを伺いながら提案させて頂くのがとても楽しい時間でした。リフォーム中は弊社の仮住まいをご利用頂き、楽しみながら生活して頂けた事も良かったと思います。仕上がりもお気に召していただけ何よりです。どうもありがとうございます。
今後とも末永いお付き合いの程、宜しくお願い申し上げます。
今後とも末永いお付き合いの程、宜しくお願い申し上げます。






























