神戸市 N様邸 トイレ&マンションリノベーション
異素材を組み合わせて作る隠れ家カフェの様な家
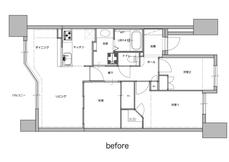
施工事例データ
| 築年数 | 5年 |
|---|---|
| 施工床面積 | 43㎡ |
| 工事日数 | 30日間 |
| 家族構成 | 夫婦+子ども |
| 施工箇所 | 廊下、リビングダイニング、間取り変更(和室を洋室に)、トイレ |
| 施工内容 | 仮設・解体工事、木工事、天井木パネル・家具工事、内装工事、タイル工事、電気工事 |
| 工事金額 | 258万円 |
| 担当 | 佐藤、松長 |
| お客様のご要望 | 新築で購入されたマンションですが、お施主様はずっと物足りないとお考でした。自分達がイメージする雰囲気を持った家にしたいとリフォームをご希望されました。 |
|---|
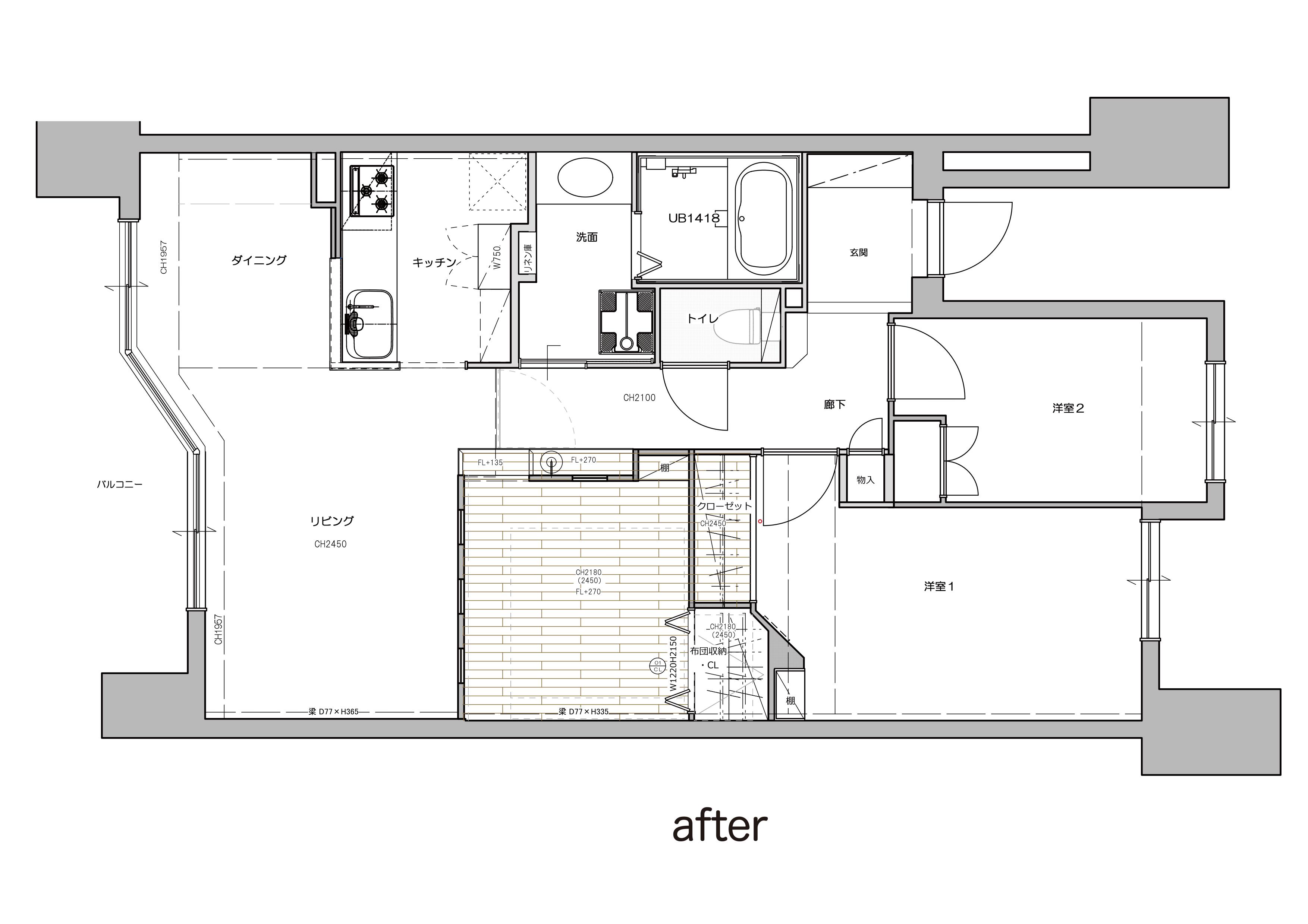
| プラン決定のポイント工夫 | ・和室を洋室にして床を上げる ・天井に板を張る。この2点が最初にお聞きした条件でした。使い辛かった隣室のWICLを押入れとして取込み、既存の押入れをCLとして隣室から使える様に収納を変更。リビングを元和室の間にはアイアンを設置した縦スリットを壁に作り天井板を続けて張る事で2室を穏やかに繋げ、広がりを感じられる空間にしました。 |
|---|
施工前
築浅なので綺麗ではあるが、ごく一般的なレストルーム。
真っ白なLDKの空間は清潔感はありましたが、やや物足りない印象でした。
施工後
ご主人セレクトの印象的な配色の内装。家族皆のお気に入りになったそうです。
キッチンからダイニングの天井を下げ、重い印象のクロスで仕上げる事でリビングの板張り天井に負けない強い印象を与える空間になりました。
パイプスペース部分には天井と同じ板を張り、印象的なクロスを採用する事でダイニングのイメージを激変させました。 キッチン背面収納:カベヅケ/WOODONE
元和室は床を30cm程上げ、リビング側の一部を浮かせる事で軽やかな印象を与えています。
既存の押し入れは隣の部屋の収納として使い、新たな収納を設置内部は床が上がった分を床下収納として利用しています。 クローゼット折戸:ベリティス/Panasonic
リビングと洋室の天井に同じ板を張る事で、空間同士を柔らかくつなげています。 天井:リアルパネル ナララスティック/ニッシンイクス タイル:Antica/平田タイル
ダイニングの壁にはブルーのアクセントクロスを採用。ぱっと目を引き、ダイニング空間をより引き立てる役割を果たしています。
廊下の壁を一部取り払い、ベンチスペースを設置。飾りを置いたり座って本を読んでみたりと色々な活用が出来るスペースとなっています。印象的なアイアンと照明はお施主様の支給品。 床:ナラ無垢フローリング/ニッシンイクス
壁の一部がセットバックしたことで、廊下が一気に明るく広くなりました。ベンチ横の壁には将来扉を取り付ける事が出来る様に下地を入れています。
担当者より
何度も打合せを繰り返し、納得の行くリフォームになるようにお互いが意見を出し合って出来上がった改装になりました。工事をする側としては大変ながらも楽しい現場でした。






















